SYSTEMS
Ceramic Facade Systems
Sinterflex Facade Systems
Compact Laminated Facade Systems
Frontek Facade System
Terra Cotta Facade Systems
Fibrecement Cladding Systems
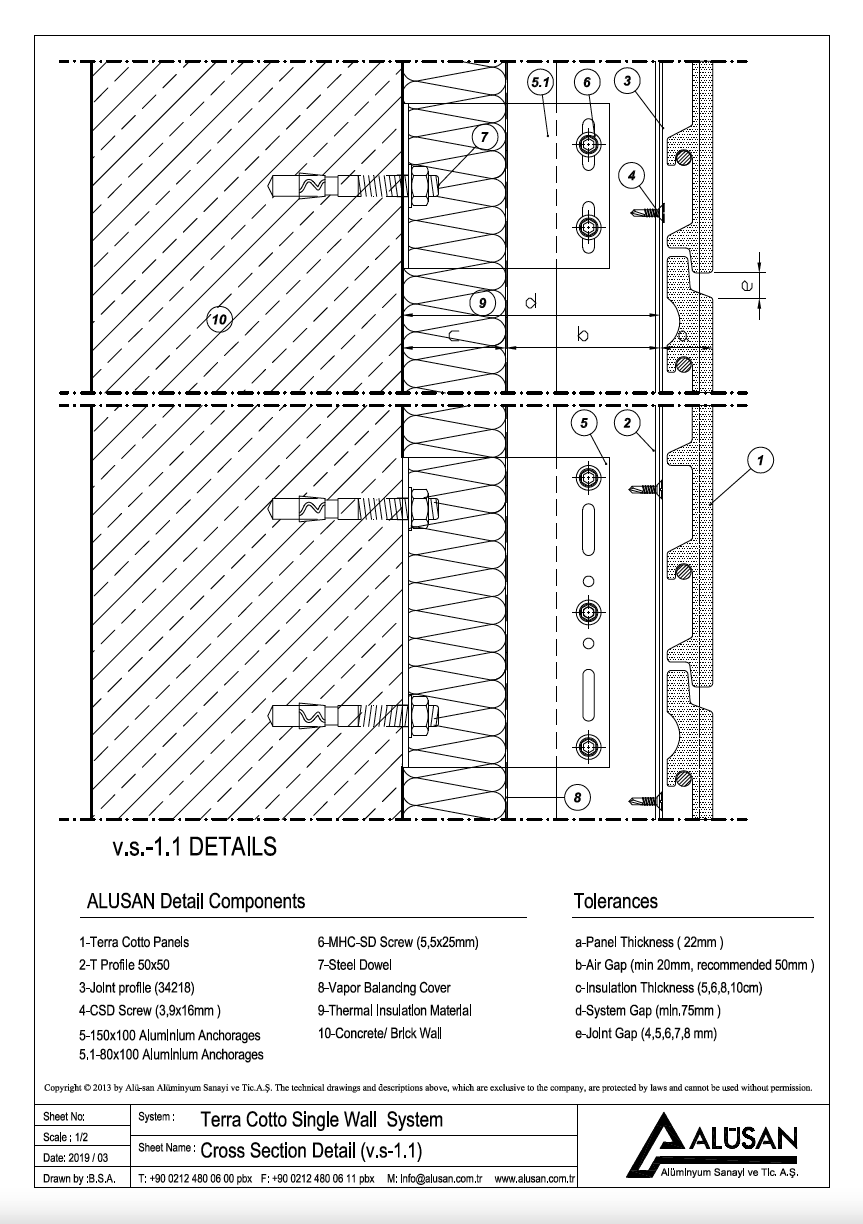
Single Wall System
In this system, vertical load-bearing T profiles are fitted on the building facade as per the project after the Aluminum Brackets are mounted on the wall, and then special type load- bearing fuga profile is mounted on the T profiles to complete the substructure construction. The cladding process is completed by hanging Terracotta panels on the Construction.
