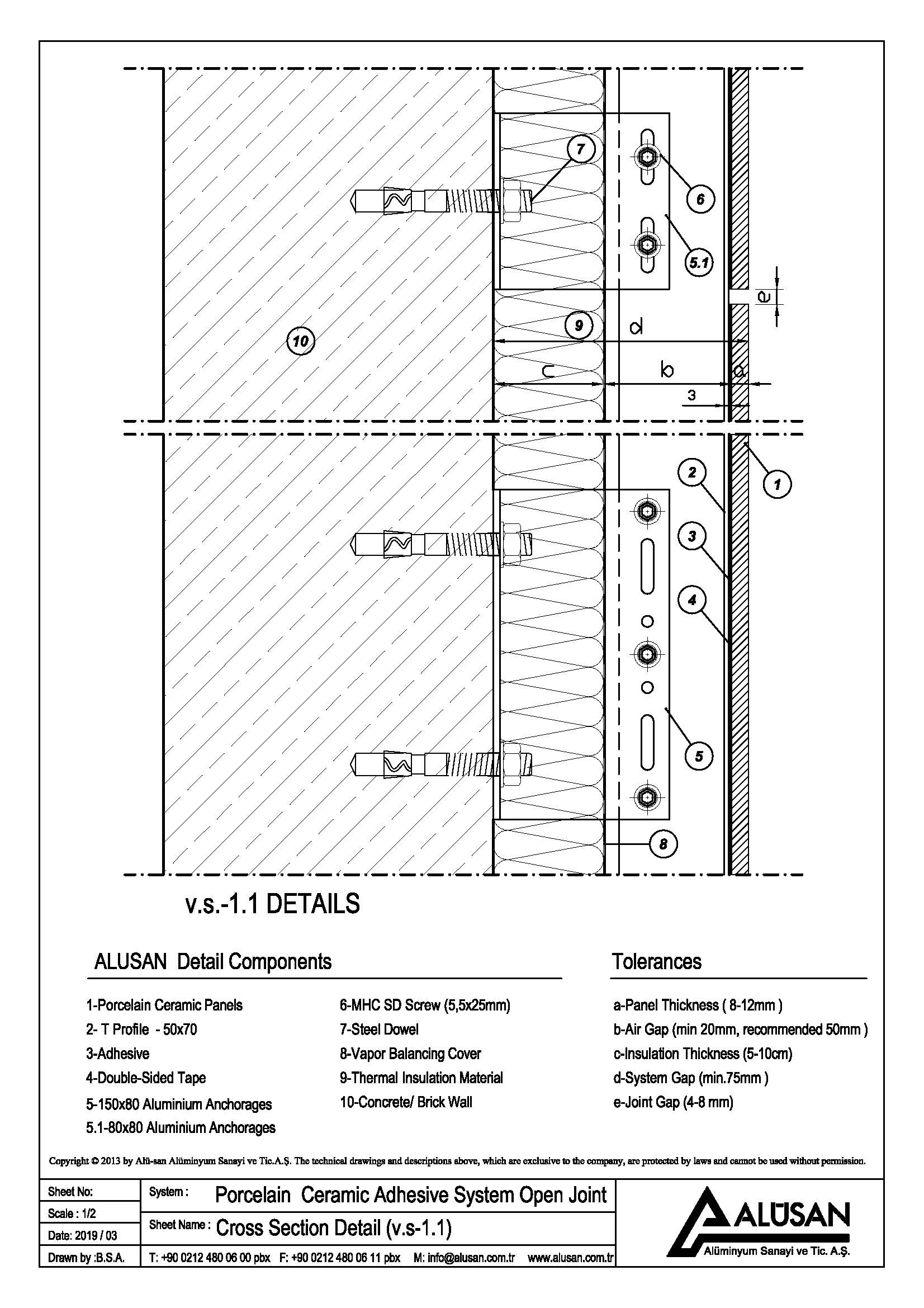
Adhesive System
Ceramics are mounted on the aluminum load-bearing profile by an auxiliary temporary tape and by a polyurethane based material with high strength that does not lose its elasticity between -40° and +100°C. It is the most cost effective method for ceramic applications and can be implemented at any dimensions. It can be custom mounted as open joint or closed joint. Different than the open joint application, in the closed joint system, the gaps between the joints of the material is closed by mounting special aluminum profiles in desired RAL color onto the vertical and horizontal joints of the coating material.
