SYSTEMS
Ceramic Facade Systems
Sinterflex Facade Systems
Compact Laminated Facade Systems
Frontek Facade System
Terra Cotta Facade Systems
Fibrecement Cladding Systems
Mechanic Stick System
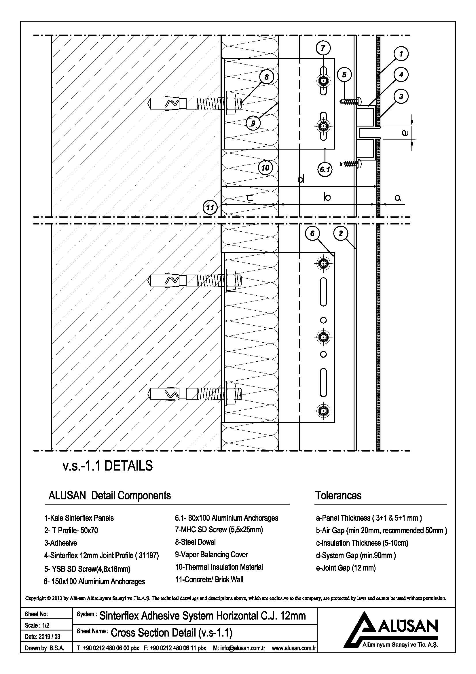
Sinterflex Stick System is applied by sticking Sinterflex Panels on the load-bearing base construction composed of aluminum anchorages and aluminum vertical T profiles using polyurethane adhesive and double-sided tape. Recommended thickness of the Sinterflex panels to be used in this system is 5mm.
