Alusan Aluminum Co.

Get a Free Quote
Kapat

Agraffe System

Agraffe System

Agraffe System
Agraffe System
Agraffe System
Agraffe System
Agraffe System
Agraffe System

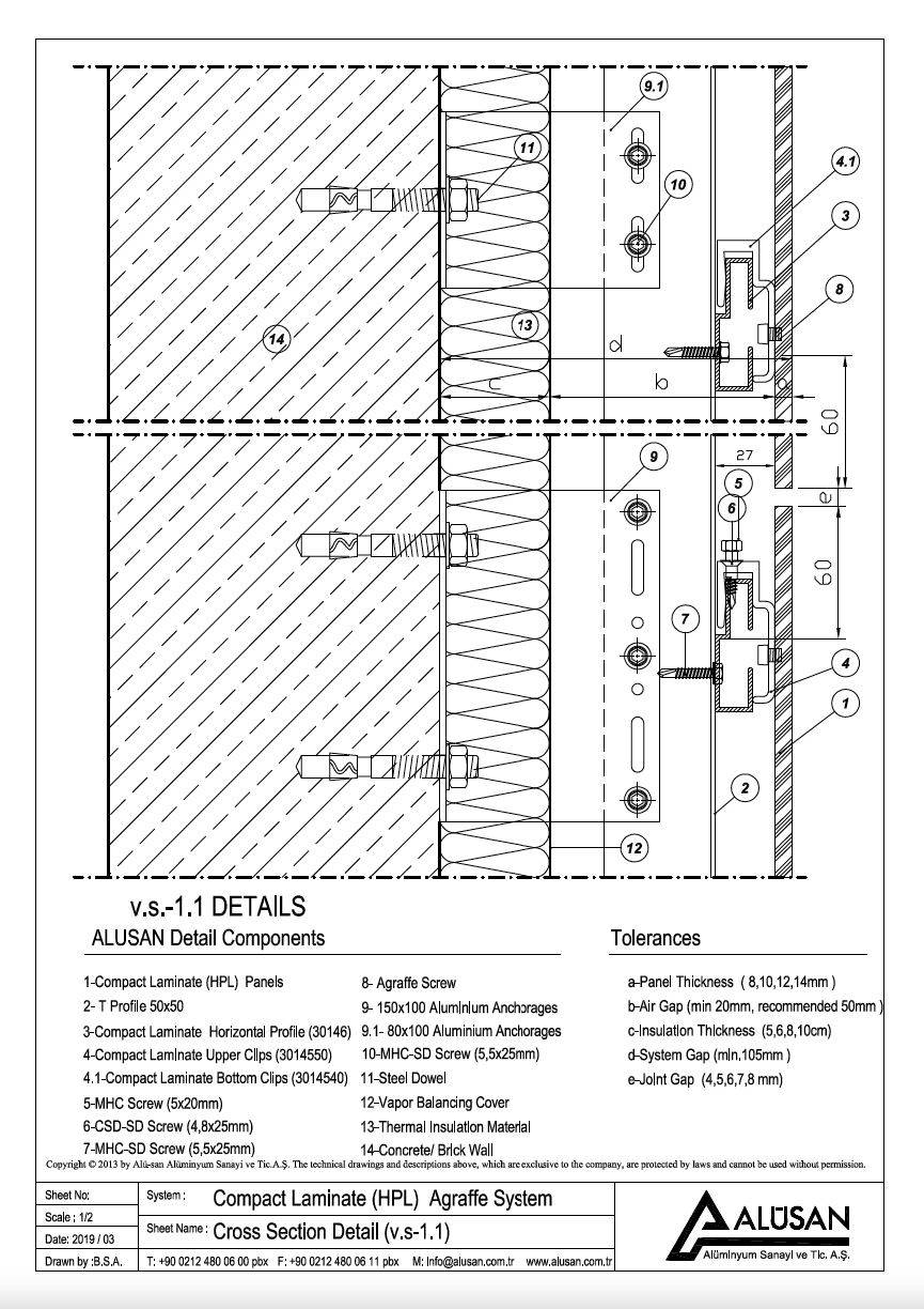
It is hanged on the building facade as per related Project on the load-bearing base construction composed of aluminum anchorages and aluminum vertical T profiles using Capmpact Laminated plates and agraffe clips fixed at 4 points on the rear sides. Joints are open in this system.

Get a Free Quote

You can contact us by using the form below for special solutions for your needs.