SİSTEMLER
Seramik Cephe Sistemleri
Sinterflex Cephe Sistemleri
Kompakt Laminat Cephe Sistemleri
Frontek Cephe Sistemleri
Terra Cotta Cephe Sistemleri
Fibrecement Giydirme Sistemleri
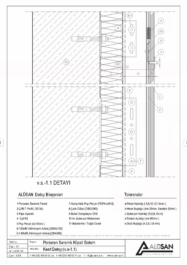
Klipsli Sistem
Bu sistemde Alüminyum Braketler duvara monte edildikten sonra özel tip taşıyıcı Profiller bina cephesine projesine uygun olarak tespit edilir, daha sonra Porselen Seramikler Ral renginde veya natural paslanmaz çelik klipsler ve EPDM fitiller yardımı ile taşıyıcı alüminyum profillere monte edilir. Her türlü ebatta kullanılabilir. Sahip olduğu statik değerler nedeniyle yüksek katlı binalarda da kullanılabilmektedir.
